JEFF STACEY

Architect

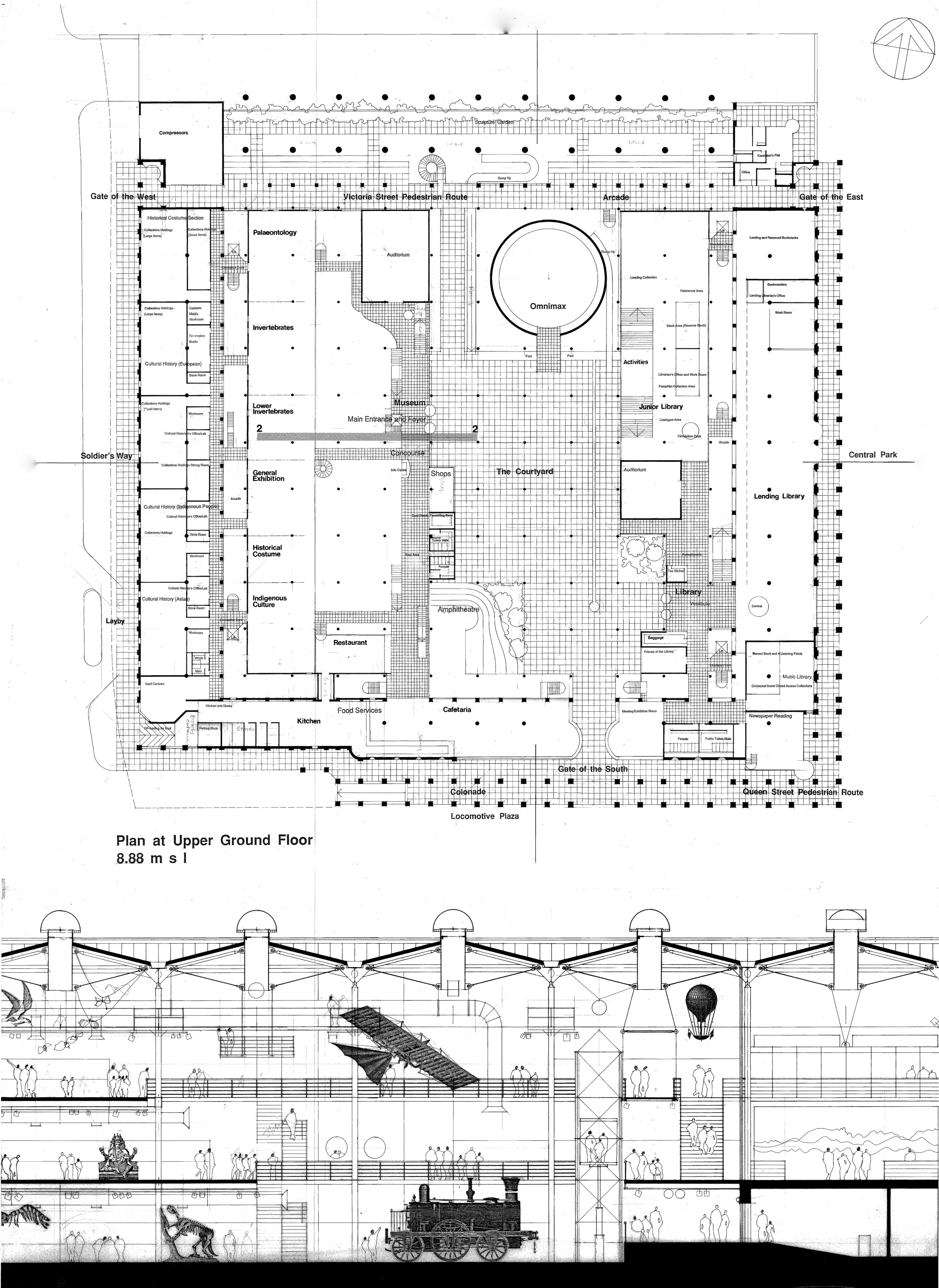
Durban Museum and Library

Competition, Etekweni, KwaZulu-Natal

South Africa


With Melinda Silverman

Joint Second Prize


A city library and museum combined was proposed as a cultural and educational development catalyst in the heart of the city of then Durban, now Etekwini.

Colonnaded facade “walls” of spaces enclosed the public exhibition spaces, some with triple volumes, with a grid of umbrella roofs floating above. The pyramid roof forms with their “bicycle wheel” structure provided both ventilation and diffused natural light to the spaces below.

The Omnimax theatre is the focal point of the courtyard.

A rich mix of architectural styles along the external faces reflect the diverse heritage of the city, with four towers marking the corners of the precinct.


1988 Unbuilt



Site Plan